Cota de 1/2 din apartament 2 camere in Baia Mare, Strada Victoriei, Nr. 116A, mansarda, jud. Maramures

Descriere

Descriere

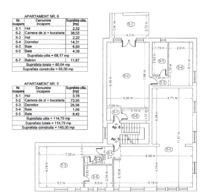
Se vinde o cota de 1/2 dintr-un apartament situat la mansarda unui imobil cu regim de înălțime P+1E+M, edificat în jurul anului 2016, în zona Albina din Municipiul Baia Mare. Proprietatea este parte a unui ansamblu rezidențial cu acces facil din Strada Victoriei, într-o zonă urbană matur dezvoltată.

Caracteristici imobil:

  • Suprafață utilă: 68.17 mp
  • Suprafață construită: 99 mp
  • Compartimentare: hol, cameră de zi + bucătărie, dormitor, două băi, balcon
  • Cote părți comune: 33/742 
  • Cote teren: 52/1179 
  • Etaj: mansardă
  • Regim de înălțime al blocului: P+1E+M
  • Dotări: 1 centrala termica, instalații funcționale, finisaje peste medie
  • Stare tehnică: foarte bună
  • Utilizare actuală: rezidențială

Informații suplimentare:

Apartamentul este parte dintr-un spațiu obținut prin unificarea a două unități locative, fiind evaluat ca un tot unitar

Caracteristici

Specificaţii

Acte necesare

Persoane fizice n

  • mDovada depunerii cauțiunii, în contul specificat de catre executor, de 10% din prețul de pornire al licitației*
  • mC.I/B.I în original și copie
  • mOferta scrisă de cumpărare a bunului
  • mProcura autentică în cazul în care potențialul cumpărător este reprezentat de o altă persoană la sedința de licitație

*În cazul necâștigării licitației, cauțiunea depusă se restituie la cerere.

Persoane juridice n

  • mDovada depunerii cauțiunii, în contul specificat de catre executor, de 10% din prețul de pornire al licitației*
  • mOferta scrisă de cumpărare a bunului
  • mCopie a certificatului de înmatriculare a societății comerciale
  • mCertificat constatator de la Registrul Comerțului cu datele firmei și reprezentanții acesteia, din care să rezulte că firma este în funcțiune și nu se află în procedura de insolvență
  • mMandat de participare la licitație, emis de societate
  • mC.I/B.I în original și copie ale reprezentantului firmei care participă la licitație

*În cazul necâștigării licitației, cauțiunea depusă se restituie la cerere.

Cum se desfășoară licitația

Executorul judecătoresc va oferi spre vânzare imobilul prin trei strigări succesive la intervale care permit supralicitări și va porni de la prețul menționat în publicația de vânzare.

În cazul înregistrării unei oferte cu preț mai mare, se va începe de la acest preț.

Ce se întamplă după licitație (adjudecare)?

 1 Plata la termen  n

Adjudecatarul imobilului are obligația să plătească preţul imobilului în termen de cel mult 30 de zile de la data vânzării (licitatiei), ţinându-se seama de cauţiunea depusă

În situația în care adjudecatarul nu plătește preţul în termenul prevăzut de 30 de zile, imobilul se va scoate din nou la vânzare în contul adjudecatarului, el fiind obligat să plătească cheltuielile prilejuite de noua licitaţie şi o eventuala diferenţă de preţ.

 2 Întocmirea actelor  n

După plata integrală a prețului, executorul judecătoresc va întocmi actul de adjudecare

Un exemplar se va preda adjudecatarului spre a-i servi ca titlu de proprietate și pentru a fi înscris în cartea funciară.
Prin actul de adjudecare, proprietatea imobilului se transmite de la debitor la adjudecatar.
De la data intabulării imobilul rămâne liber de orice ipoteci sau alte sarcini.

Detalii

  • 49.550 €
  • Baia Mare Strada Victoriei, Nr. 116A
  • Licitație În curs de stabilire

Poți folosi formularul de mai jos pentru a transmite o ofertă de cumpărare sau pentru a afla mai multe informații

Acest site este protejat de reCAPTCHA conform Google Privacy Policy & Terms of Service.